A standing-room-only crowd filled Borough Hall on March 4 as the Hopewell Borough Planning Board continued its public hearing on the proposed Hopewell 57 redevelopment project, with discussion focused largely on the architecture, scale and design of the planned residential development.

The meeting drew such a large turnout that residents lined the walls of the meeting room, while additional viewers watched remotely on Zoom. The borough allows the public to watch meetings online but does not permit remote public comment, meaning anyone wishing to ask questions or speak must attend in person.
Several residents asked whether future hearings could be moved to a larger venue to accommodate the growing interest in the proposal.
Planning Board Chair Peter Macholdt limited the meeting to three hours, continuing a format used during the board’s initial hearing on the application. During that time, the applicant’s team presented additional testimony on the design of the project while board members and residents asked questions.
The project, proposed by Hopewell 57 Renewal Urban Renewal Entity LLC, seeks preliminary and final site plan approval to redevelop a former industrial property near Railroad Place and Somerset Street into a residential complex that includes apartments, townhouses and a community building.
According to testimony presented during the hearing, the development would include a four-story apartment building with 78 units and a series of stacked townhouses totaling 42 units. There will be affordable housing units located in the apartment building.

Architectural design and neighborhood context
Much of the evening focused on the architectural design of the project and how it would fit within Hopewell Borough’s existing streetscape.
Project architect Michael Kautter described the design as intentionally drawing from two architectural traditions present in the surrounding area: industrial warehouse buildings near Railroad Place and the smaller residential homes along Lafayette Street and Hamilton Avenue.
“The four-story apartment building design and detail considerations were informed by early to mid-20th century light industrial and warehouse architecture,” Kautter told the board while presenting slides of the proposal.
The apartment building would include recessed windows, balconies and brick accents intended to reflect that industrial character.
Along Lafayette Street and Hamilton Avenue, the proposal instead features two-and-a-half-story stacked townhouses designed to resemble the scale and style of nearby homes.
Kautter said those buildings incorporate architectural elements common in the borough, including clapboard siding, dormers and porch-style entrances.

“The townhouse design was influenced by neighborhood mid-century arts and crafts and bungalow-style residential architecture,” he said during his testimony.
The apartment building would be located deeper within the site along Somerset Street, while the townhouse buildings would face the surrounding neighborhood streets.
Kautter said the arrangement was intended to reduce the visual impact of the larger structure.
“The townhouses located along Lafayette Street and Hamilton Avenue are two and a half stories and are designed to be complementary to the residential architecture,” he said.
The apartment building would reach approximately 46 feet to the roof line, with an additional few feet for parapets and rooftop structures for the elevator and stairwells extending higher.
*Editor’s note. A previous version of this story indicated the roof was slightly higher. The story has been corrected.
Plans also include a one-story community building containing a fitness center, co-working space, leasing office and other amenities for residents.
Historic Preservation Commission review

The board also heard testimony from Michael Mills of the Hopewell Borough Historic Preservation Commission (HPC), which reviewed the design because the site sits within the buffer zone surrounding the borough’s historic district.
The HPC representative said the commission worked with the project team to refine elements of the design, including breaking up long facades and incorporating wider front porches on the townhouse buildings to reflect Hopewell’s architectural character.
The commission ultimately concluded the design was appropriate for the site.
“We thought the proposal was a very intelligent way to accommodate the permitted residential density on this former industrial site,” Mills said during the presentation.
He added that the townhouse buildings help maintain the scale of the surrounding neighborhood while the larger apartment building sits further back on the property.
Public questions and concerns
Throughout the meeting, residents asked a series of detailed questions about the project’s design, including the building height, materials, views from nearby streets and the potential appearance of rooftop mechanical equipment.
One resident asked whether the project team had studied how visible the apartment building would be from surrounding streets.
Kautter said the team could produce additional model views to show perspectives from different locations.

“We can do model representations of what various perspective views could be from sidewalks and intersections around the site,” he said.
Another resident raised concerns about materials and colors used on the buildings, noting that renderings sometimes appeared to show different brick colors than expected.
Project representatives said the final brick color had not yet been selected but would likely resemble traditional red clay brick used elsewhere in the borough.

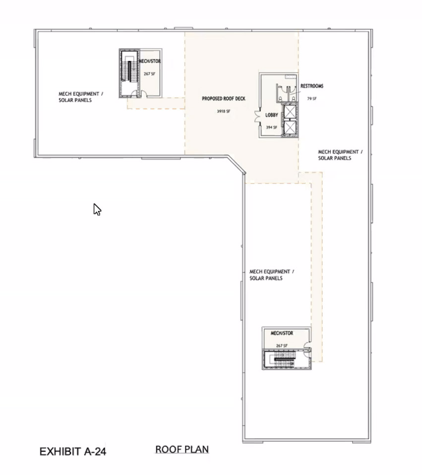
Residents also asked about rooftop uses since there was a rooftop deck shown, lighting and other shared outdoor spaces within the development.
Kautter said the apartment building’s roof would include a roughly 3,900-square-foot passive seating area for tenants, with lighting designed to meet dark-sky standards.
Residents raise questions about safety reviews, documents and project details
Residents also pressed the applicant and the board about several technical aspects of the proposal, including fire safety reviews, landscaping plans and access to documents referenced during testimony.
One resident asked whether a fire safety analysis had been completed for the project given the scale of the proposed buildings.

Project representatives said the building had already been reviewed by a fire safety official who consulted with local fire departments and emergency services and produced a memorandum evaluating the design.
Other questions focused on site details such as where dumpsters would be located, how trash service will work for the community, whether landscaping plans had been reviewed by the borough’s Shade Tree Commission and how the proposed townhouse units would be arranged internally.
During one exchange, a resident asked how the units would be distributed within the stacked townhouse buildings.
The applicant explained that the design includes a one-bedroom unit on the ground floor with a two-story unit above it spanning the second and third floors.
Several residents also asked that reports and analyses referenced during testimony — including fire safety reviews and commission reports — be posted publicly before the next hearing so members of the public could review them.
Board officials said materials submitted as part of the testimony would be posted online when available.
Questions about building height and site topography also surfaced during the discussion, with residents asking how elevation changes across the property might affect the apparent height of the buildings from different vantage points.
Limits of the Planning Board’s authority
At one point during the meeting, a resident asked what aspects of the project the Planning Board actually has the authority to change.
The board’s attorney explained that the board’s role is limited to evaluating whether the application meets the requirements of the borough’s zoning and redevelopment plan.
“The planning board is a quasi-judicial board,” the attorney said. “Our role is to evaluate whether this application meets those standards.”
If the project complies with those standards — including requirements related to height, setbacks and density — the board cannot deny the application based solely on those factors, he said.
Instead, the board can focus on mitigating impacts such as lighting, landscaping or other design details.
Next meeting to focus on traffic
Because the hearing could not be completed within the three-hour time limit, the Planning Board scheduled a special meeting to continue reviewing the application.
The next hearing on the Hopewell 57 proposal is scheduled for March 25 at 7pm at Borough Hall, when testimony is expected to shift toward traffic impacts and transportation analysis related to the project.
As with the March 4 session, the meeting is expected to draw significant public interest. On Tuesday this week, Hopewell residents encouraged people to drive past the location of Hopewell 57 and park their cars to get a feel for what driving through the neighborhood will be like after the building is constructed and occupied.






