After years of study, public discussion, and multiple design revisions, Hopewell Borough is moving closer to replacing and renovating its aging Department of Public Works (DPW) facility on Burton Avenue — a project officials say is increasingly urgent as buildings continue to deteriorate.

At its Feb. 18 meeting, the Hopewell Borough Planning Board reviewed updated plans showing how the borough intends to modernize the small municipal work yard while reducing neighborhood impacts through landscaping, tree preservation, and dark-sky lighting.
Borough officials have been discussing improvements to the site since at least 2018. The DPW complex — the borough’s only public works facility — houses equipment storage, salt handling, vehicle maintenance, and staff space that supports year-round operations.
“This is your only DPW site in the borough,” architect Veronica Bregenzer told the board. “All the equipment and all their processes that occur during spring, summer, fall, and into the winter — all that still has to be accommodated for your borough while we do a full construction here.”
Buildings at End of Life
Mayor Ryan Kennedy and borough staff have repeatedly described the existing buildings as functionally obsolete and physically failing. The main garage and shop areas lack adequate space, environmental controls, and modern safety features, while salt storage and equipment areas do not meet current standards.
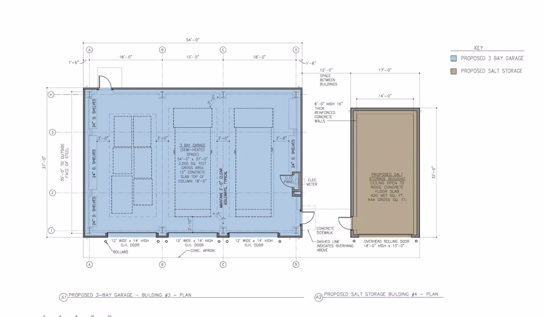
The project has been reshaped several times in response to cost constraints and neighborhood feedback. Earlier concepts included larger structures, but the current plan focuses on renovating existing buildings where possible and constructing a modest new three-bay garage and NJDEP compliant salt storage building.

Bregenzer explained that the redesign emphasizes practical operations while limiting visual impact.
“We’re really just trying to make this function better for the DPW,” she told the board, describing a reorganized layout with defined public access, staff facilities, and work areas. “You could park here, go in the sidewalk, go into the building, and then meet with whoever you need to meet with — not just wander back into the DPW looking for Alan.”
Design Changes to Fit Neighborhood
The Burton Avenue site sits within a residential neighborhood, and planners said much of the redesign effort has focused on minimizing visual and environmental impacts.
Updated plans include:

• preservation of mature perimeter trees
• new landscaping buffers along Burton Avenue
• wood screening fencing around work areas
• relocated buildings to reduce tree removal
• dark-sky compliant lighting fixtures
• enclosed salt storage meeting DEP standards
Lighting was a particular focus during the presentation.
“Because it is a DPW site, there is a requirement for safe lighting for employees, especially at night and during emergencies,” the architect said. “So we are looking at lighting design that would be dark-sky compliant with the fixtures.”
Board members also reviewed how buildings were shifted on the lot to avoid critical tree root zones — a change made after neighbor concerns and Historic Preservation Commission input.
Years of Planning and Outreach

The DPW upgrades have undergone extensive public review. Borough officials held neighborhood meetings and on-site “coffee” sessions at the facility, presented concepts to the Historic Preservation Commission, and adjusted designs to address screening, scale, and tree protection.
A project timeline presented to the board shows:
• planning discussions beginning in 2018
• multiple cost-driven redesigns
• $2.7 million bonded in borough debt planning
• roughly $3.2 million estimated total cost
• public outreach meetings continuing

Officials said those revisions reflect both fiscal realities and community feedback.
Construction Logistics Still a Challenge
Even as the design advances, borough staff emphasized that construction staging remains complex because the DPW must remain operational throughout the project.
“That’s one of the concerns that we’re still working through on scheduling,” the architect said. “All their equipment and processes still have to be accommodated while we do a full construction here.”
As for the cost of the project, all of the money that had been previously bonded for the project will be covered by the Borough’s sale of the water system and a grant it received to cover a portion of the project. During the planning board meeting Kennedy explained that there have been no bids for the project yet, but if it falls within budget there was no question that the money for all of the renovations was available.
Next Steps
The Planning Board review was part of the borough’s capital planning process and follows earlier Historic Preservation Commission input. Final approvals and bidding decisions will be made by Borough Council.
Officials said the project’s goal is straightforward: replace failing infrastructure while preserving neighborhood character.
For borough leaders, the urgency is clear.
The DPW site “has to function for the town every day,” Kennedy said in earlier discussions. “This is essential infrastructure — the trucks, the salt, the roads, the storms. It all starts here.”








